Longeville-sur-Mer - MAISON 3 PIECES- 64M²- À VENDRE AUX CONCHES- LONGEVILLE SUR MER
233 800 €
Honoraires à charge vendeur
Réf. : 04653
Description du bien
REF : 04653-OC-PROJET
**Un emplacement d'exception sur le littoral vendéen **
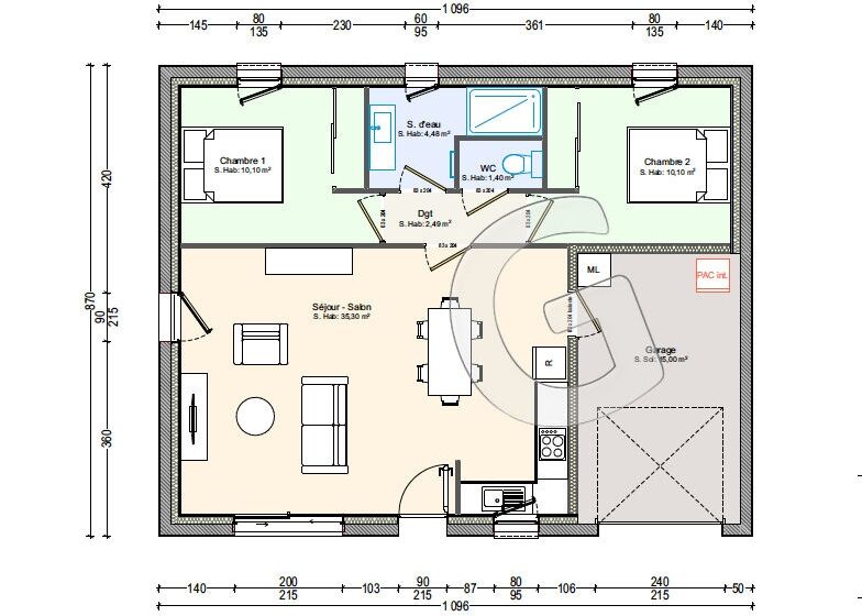
* Dans l'un des secteurs les plus prisés des Conches, ce terrain clos de 440 m² bénéficie d'un cadre privilégié, entre nature, calme et proximité immédiate de l'océan.
* Véritable opportunité, il offre la possibilité de concevoir une maison contemporaine sur mesure, pensée pour le confort et la luminosité : bel espace de vie ouvert, 2 chambres, prestations modernes et garage.
* Une adresse idéale pour une résidence principale élégante ou une maison de vacances raffinée.
* Un bien rare sur le marché, alliant emplacement et potentiel.
- Localisation : LES CONCHES- LONGEVILLE SUR MER
- Surface habitable : 63,87m²
- Terrain : 440m²
- Prix de vente : 233 800 euros (honoraires à la charge du vendeur)
- DPE: Vierge ( projet de construction)
AGENCE GROLLEAU ANGLES - 02.51.29.16.61
Tous nos biens sur www.agence-grolleau.com
Caractéristiques
Maison
Surface :
64 m²
Terrain :
440 m²
Nb. de pièces :
3
Nb. de chambres :
2
Cuisine :
Ouverte
Nb. de WC :
1
Ouvertures :
Mixte Alu - PVC
Les informations sur les risques auxquels ce bien est exposé sont disponibles sur le site Géorisques : www.georisques.gouv.fr
Découvrez le bien en photos







